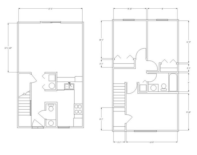
Meadow Ridge II.   Features low utilities,  and compact well- planned living space on two stories . Proximity to Campus and Entertainment is unmatched in Carbondale. And there’s parking  adequate for all residents and their guests.

NEXT 

Meadow Ridge II